本閥適用于液體、氣體、油品、化工原料、蒸汽等介質,進行溫度自動控制的執行機構。可對蒸汽加熱器、散熱器、干燥器等蒸汽設備及各類溫度自控儀、蒸汽定型機、蒸汽機、蒸汽回潮機等成套設備的鍋爐蒸汽管道進行二位式自動控制和遠程控制。廣泛應用于染化、紡織、印染、食品、醫藥、卷煙、水泥制品、石油化工、冶金等部門的自控系統。

| 工作介質 | 蒸汽及其他腐蝕性氣體 | ||||||||||||
| 介質溫度 (℃) | ≤200 | ||||||||||||
| 公稱壓力 (MPa) | 1.6 | ||||||||||||
| 工作壓差 (MPa) | 0.05~1.6 | 0.01~1.6 | |||||||||||
| 電源電壓 | AC220V其余規格可作特殊訂貨 | ||||||||||||
| 使用壽命 | 按JB/T7352-94規定 | ||||||||||||
| 額定流量系數 (KV) | |||||||||||||
| 泄漏量(ml/min) | 按JB/T7352-94·F規定 | ||||||||||||
| 公稱通徑 (mm) | 10 | 15 | 20 | 32 | 40 | 50 | 65 | 80 | 100 | 125 | 150 | ||
| 功耗(VA) | 40 | 50 | |||||||||||
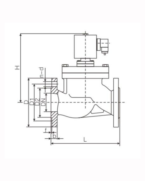
| 公稱通徑 DN | 內螺紋連接 | 法蘭尺寸 | |||||||||||
| 外形尺寸 | 內螺紋 | 外形尺寸 | 法蘭連接 | ||||||||||
| H | L | G | H | L | D | D1 | D2 | B | I | N-D | |||
| 15 | 153 | 92 | 1/2 | 153 | 115 | 95 | 65 | 46 | 14 | 2 | 4-?14 | ||
| 20 | 153 | 92 | 3/4 | 153 | 150 | 105 | 75 | 56 | 16 | 2 | 4-?14 | ||
| 25 | 153 | 110 | 1 | 153 | 160 | 115 | 85 | 65 | 18 | 3 | 4-?14 | ||
| 32 | 176 | 120 | 1 1/4 | 176 | 180 | 140 | 100 | 76 | 18 | 3 | 4-?18 | ||
| 40 | 176 | 140 | 1 1/2 | 176 | 200 | 150 | 110 | 84 | 18 | 3 | 4-?18 | ||
| 50 | 192 | 162 | 2 | 192 | 230 | 165 | 125 | 99 | 20 | 3 | 4-?18 | ||
| 65 | 250 | 290 | 185 | 145 | 118 | 20 | 3 | 4-?18 | |||||
| 80 | 260 | 310 | 200 | 160 | 132 | 20 | 3 | 8-?18 | |||||
| 100 | 290 | 350 | 220 | 180 | 156 | 22 | 3 | 8-?18 | |||||
| 125 | 365 | 400 | 250 | 210 | 184 | 22 | 3 | 8-?18 | |||||
| 150 | 400 | 480 | 285 | 240 | 211 | 24 | 3 | 8-?22 | |||||
| 200 | 416 | 600 | 340 | 295 | 266 | 24 | 3 | 12-?22 | |||||
| 250 | 434 | 730 | 405 | 355 | 319 | 26 | 4 | 12-?26 | |||||
| 300 | 490 | 850 | 460 | 410 | 370 | 28 | 4 | 12-?18 | |||||
浙公網安備 33032402001116號 網站地圖
13968958698
0577-67378705 / 67378706
浙江省溫州市甌北鎮東甌工業區和二園區大道926號